Link naar het project: https://www.tvl.be/programmas/tvl-wonen-architectuur-vierkantshoeve-maasmechelen-173659
De vierkantshoeve heruitgevonden.
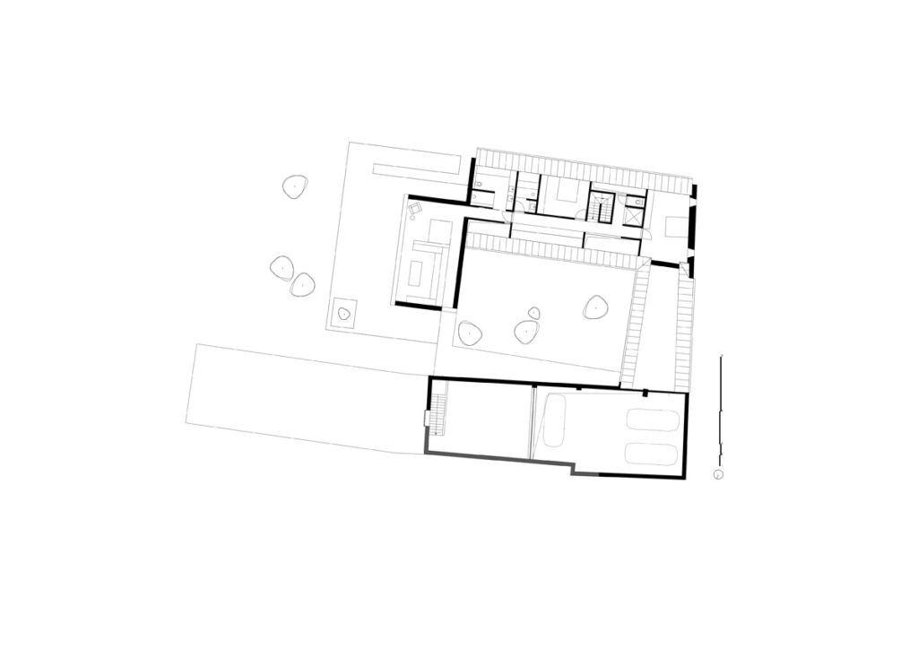
Decennialang waren vierkantshoeves beeldbepalend op het platteland. Het schikken van het woongebouw en de stallen rond een centrale koer maakte de architectuur uiterst efficiënt. Het was net die binnenkoer die de opdrachtgever sterk aansprak in deze hoeve. We hebben ze in ons ontwerp opgewaardeerd tot een buitenkamer met hoge belevingswaarde.
De bestaande volumes van de hoeve bleven grotendeels bewaard. Enkel achteraan hebben we een oude stal afgebroken om plaats te maken voor een kwalitatieve eet- en zitruimte en bureau. Op de linker perceelsgrens hebben we verder een paardenstalling toegevoegd. Bij het schikken van deze ruimtes hebben we er nauwgezet over gewaakt dat ze geen afbreuk deden aan de kwaliteit van de binnenkoer. Dat resulteert in een diagonale looplijn doorheen de binnenkoer vanaf het poortgebouw naar de stallingen. Zo onthult het ontwerp geleidelijk het perspectief op het achterliggende landschap en is de privacy op het terras verzekerd.
Robuustheid bewaard
Een nieuwe deur naast de grote poort biedt bezoekers een gemakkelijke toegang tot de binnenkoer en de voordeur. Dat pad zorgt voor een zachte, geleidelijke overgang van de publieke naar de private sfeer. De uitwerking van deze secundaire toegang is verfijnd: daglicht accentueert de bakstenen wand onder de overdekte doorgang, de houten deur en poort verwijzen naar de houten spanten in de hoeve. Die bleven maximaal bewaard om de robuuste uitstraling intact te houden.
Gekadreerde binnenkoer
Ook de originele, kleine ramen bleven behouden als getuige aan de architectuur van weleer. De nagenoeg volledig beglaasde achtergevel van de uitbouw en de glazen wand aan de binnenkoer compenseren dit ruimschoots. De lange glazen zijwand loopt vanaf de voordeur tot aan de eetruimte. Het schrijnwerk is in hout uitgevoerd. De diepte en de ritmiek van de stijlen maken dat je bij scheerlings kijken niet door de gevel kunt kijken. Kijk je frontaal door het raam, dan krijg je een gekadreerde beleving van de binnenkoer.
De grote ramen in de achtergevel geven een ongehinderd uitzicht op de achterliggende weilanden. Op de verdieping begeleidt een groendak op het overdekt terras het natuurlijke uitzicht.
Sporadisch geplaatste ronde dakopeningen brengen gebundeld daglicht tot op de nachtoverloop. Ze accentueren de hoogte van het hoevegebouw en zetten natuurlijke spots op de houten spanten.
Gestyleerde natuursteen
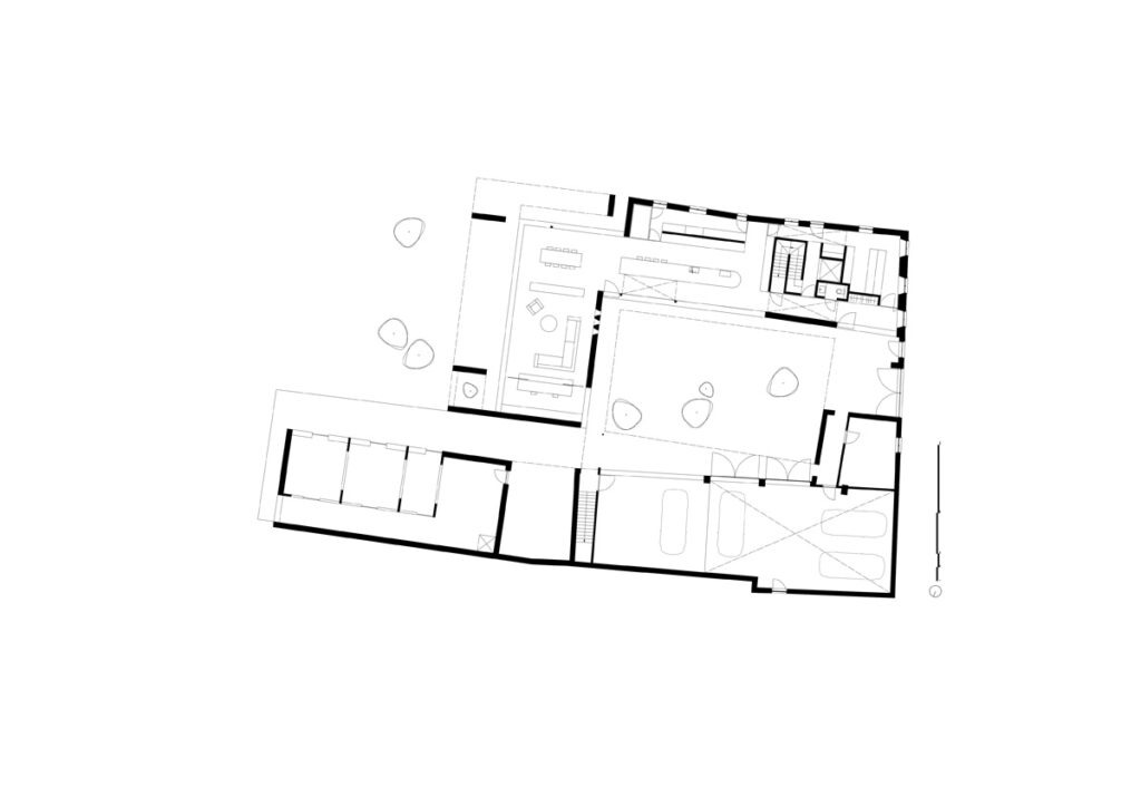
De uitbreiding aan de achterzijde van de hoeve met daarin de zitruimte en het thuiskantoor zijn in natuursteen uitgewerkt. Het gestyleerde volume verstopt zo niet dat het om een nieuwe toevoeging gaat. Tegelijkertijd is de materiaalkeuze respectvol voor de bestaande baksteenarchitectuur. Het houten schrijnwerk is een consequente rode draad tussen oud en nieuw. Het schrijnwerk is hier wel anders vorm gegeven dan in de glaswand aan de binnenkoer. Ze reiken tot op de hoeken van de gevels.
De natuursteen geeft ook het terras vorm. De hoeken zijn daarbij niet afgesneden, wat de openheid naar het landschap versterkt. Het terras definieert het grondplan van de nieuwbouw ook in de buitenomgeving. De bureauruimte krijgt een eigen gekadreerd terras waarvan het dak deels is geperforeerd. Het terras krijgt zo twee volledig verschillende belevingen.
Auto’s kijken
De schuur aan de linkerzijde van de hoeve is opengewerkt met een glazen wand. Ze fungeert als stallingsruimte voor de wagencollectie van de opdrachtgever. Vanuit de keuken is er over de binnenkoer zicht op deze collectie. Ook vanuit de fitnessruimte in het gebouwdeel is er zicht op de wagens.











Criterium 1: Architecturale kwaliteit en context (3 punten)
De vierkantshoeve heruitgevonden
Decennialang waren vierkantshoeves beeldbepalend op het platteland. Het schikken van het woongebouw en de stallen rond een centrale koer maakte de architectuur uiterst efficiënt. Het was net die binnenkoer die de opdrachtgever sterk aansprak in deze hoeve. We hebben ze in ons ontwerp opgewaardeerd tot een buitenkamer met hoge belevingswaarde.
De bestaande volumes van de hoeve bleven grotendeels bewaard. Enkel achteraan hebben we een oude stal afgebroken om plaats te maken voor een kwalitatieve eet- en zitruimte en bureau. Op de linker perceelsgrens hebben we verder een paardenstalling toegevoegd. Bij het schikken van deze ruimtes hebben we er nauwgezet over gewaakt dat ze geen afbreuk deden aan de kwaliteit van de binnenkoer. Dat resulteert in een diagonale looplijn doorheen de binnenkoer vanaf het poortgebouw naar de stallingen. Zo onthult het ontwerp geleidelijk het perspectief op het achterliggende landschap en is de privacy op het terras verzekerd.
Een nieuwe deur naast de grote poort biedt bezoekers een gemakkelijke toegang tot de binnenkoer en de voordeur. Dat pad zorgt voor een zachte, geleidelijke overgang van de publieke naar de private sfeer. De uitwerking van deze secundaire toegang is verfijnd: daglicht accentueert de bakstenen wand onder de overdekte doorgang, de houten deur en poort verwijzen naar de houten spanten in de hoeve. Die bleven maximaal bewaard om de robuuste uitstraling intact te houden.
Ook de originele, kleine ramen bleven behouden als getuige aan de architectuur van weleer. De nagenoeg volledig beglaasde achtergevel van de uitbouw en de glazen wand aan de binnenkoer compenseren dit ruimschoots. De lange glazen zijwand loopt vanaf de voordeur tot aan de eetruimte. Het schrijnwerk is in hout uitgevoerd. De diepte en de ritmiek van de stijlen maken dat je bij scheerlings kijken niet door de gevel kunt kijken. Kijk je frontaal door het raam, dan krijg je een gekadreerde beleving van de binnenkoer.
De grote ramen in de achtergevel geven een ongehinderd uitzicht op de achterliggende weilanden. Op de verdieping begeleidt een groendak op het overdekt terras het natuurlijke uitzicht.
Sporadisch geplaatste ronde dakopeningen brengen gebundeld daglicht tot op de nachtoverloop. Ze accentueren de hoogte van het hoevegebouw en zetten natuurlijke spots op de houten spanten.
Criterium 2: Duurzame aanpak (3 punten)
De uitbreiding aan de achterzijde van de hoeve met daarin de zitruimte en het thuiskantoor zijn in natuursteen uitgewerkt. Het gestyleerde volume verstopt zo niet dat het om een nieuwe toevoeging gaat. Tegelijkertijd is de materiaalkeuze respectvol voor de bestaande baksteenarchitectuur. Het houten schrijnwerk is een consequente rode draad tussen oud en nieuw. Het schrijnwerk is hier wel anders vorm gegeven dan in de glaswand aan de binnenkoer. Ze reiken tot op de hoeken van de gevels.
De natuursteen geeft ook het terras vorm. De hoeken zijn daarbij niet afgesneden, wat de openheid naar het landschap versterkt. Het terras definieert het grondplan van de nieuwbouw ook in de buitenomgeving. De bureauruimte krijgt een eigen gekadreerd terras waarvan het dak deels is geperforeerd. Het terras krijgt zo twee volledig verschillende belevingen.
Criterium 3: Functionaliteit en gebruikerservaring (2 punten)
De schuur aan de linkerzijde van de hoeve is opengewerkt met een glazen wand. Ze fungeert als stallingsruimte voor de wagencollectie van de opdrachtgever. Vanuit de keuken is er over de binnenkoer zicht op deze collectie. Ook vanuit de fitnessruimte in het gebouwdeel is er zicht op de wagens.
